SYLVAIN TRONQUEZ Négociateur
Télécharger la fiche

Terrain 654 m² 654 m²

Saint-Christol-lès-Alès (30380)
96 000 € Référence VT103

A propos de ce bien

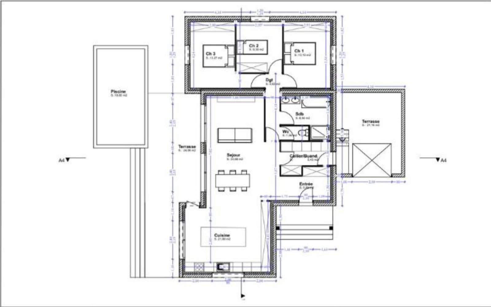
Terrain A SAISIR TRES VITE, à quelques minutes des commerces et commodités de Saint Christol, beau terrain de 654 m² plat, dans un endroit sympathique hors lotissement. Un permis de construire pour une maison de 100 M² avec garage a été obtenu sur ce terrain, il ne pourra pas être modifié extérieurement mais intérieurement si . Ce beau terrain se situe dans un environnement résidentiel agréable, il est libre constructeur ! Belle affaire sur un village ou il n'y a plus de terrains constructibles intéressants

Caractéristiques de ce bien

  • terrain 654 m²

Diagnostics énergétiques

DPE
GES
DPE ANCIENNE VERSION

Informations financières

Prix de vente 96 000 € Les honoraires d'agence seront intégralement à la charge du vendeur

Calcul des mensualités

* Champs obligatoires